Leave a Message

Thank you for your message. We will be in touch with you shortly.

Explore Our Properties

Property Description

Discover a unique opportunity to own a versatile, multi-use property offering space, privacy, and future potential. This move-in ready two-bedroom, one-bath ranch sits on 1.3 acres and features an open-concept layout where the kitchen flows seamlessly into the dining and living areas--ideal for everyday living and easy entertaining.

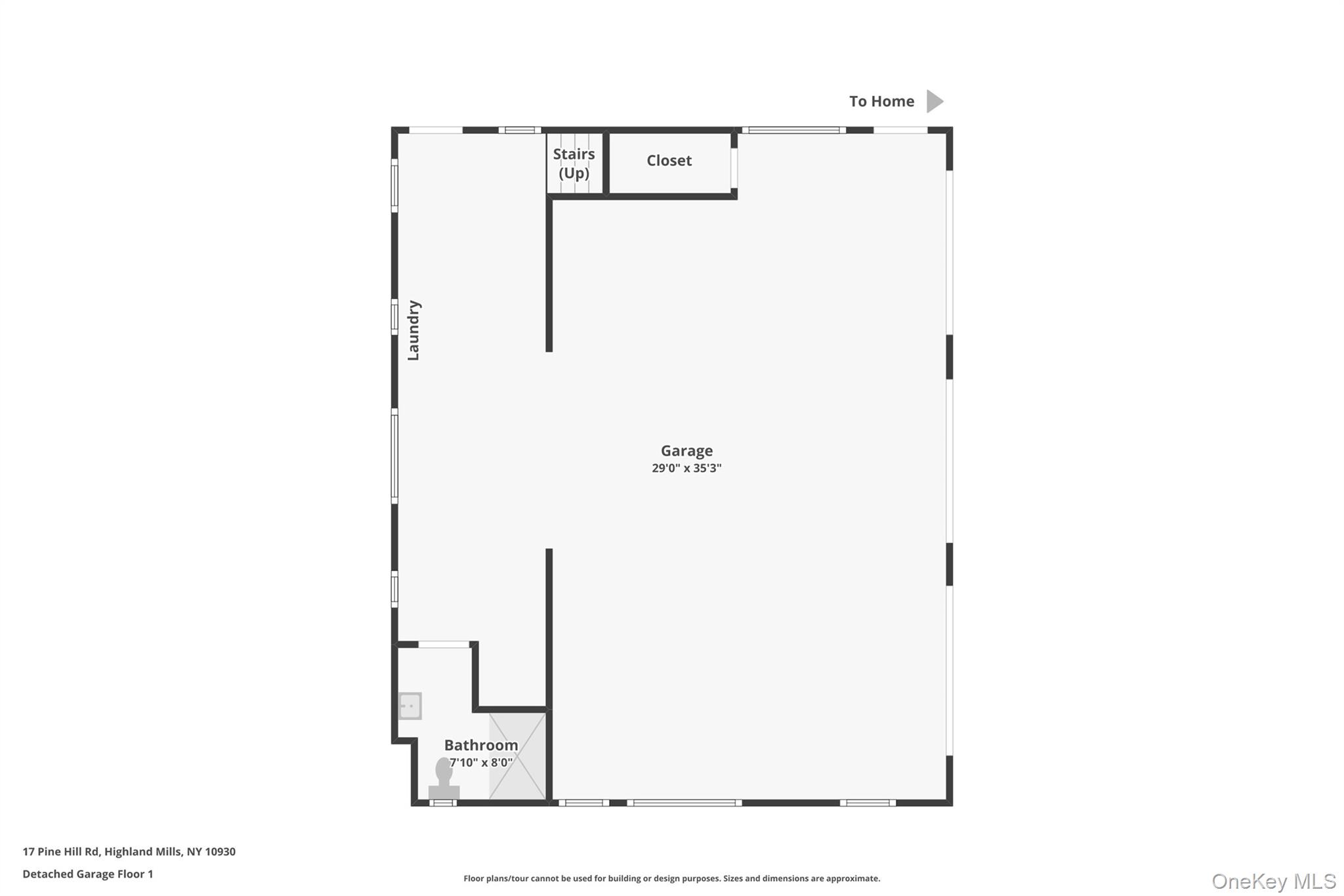
What truly sets this property apart is the FULLY EQUIPPED DETACHED 3-CAR GARAGE with LOFT--an exceptional bonus structure rarely found at this price point. Outfitted with its own full bathroom, heat, electric, central air, and washer/dryer hookups, this space is perfectly suited for a home business, workshop, car enthusiast, or extended living setup. Above, an unfinished loft offers excellent potential for future finished space such as a studio, office, or possible accessory apartment, allowing the next owner to unlock additional value.

A SEPARATE STUDIO building with electric, heat, and internet adds even more flexibility--ideal for remote work, creative use, or private space.

The property also features a large FENCED ENCLOSURE for pets or hobbies, and is set well back from the road for a peaceful, private setting.

Conveniently located near shopping, dining, and outdoor recreation, this property offers the rare combination of a comfortable home today with significant upside for tomorrow. Whether you're looking for workspace, expansion potential, or a property that adapts to your needs, this one delivers.

Overview

Property Status
For Sale
Lot Size
1.3 Acres
MLS ID
980393
Property Type
Residential
Year Built
1930

Features & Amenities

Neighborhood
Woodbury
Architecture Styles
Ranch
Garage Spaces
3.0
Water Source
Public
Utilites
Cable Connected, Electricity Connected, Water Connected
Parking
Heated Garage
Heat Type
Oil
Air Conditioning
Ductless
Fireplace
Pellet Stove, Wood Burning Stove
Appliances
Dishwasher, Dryer, Electric Range, Refrigerator, Washer
Other Interior Features
First Floor Bedroom, First Floor Full Bath, Breakfast Bar, Cathedral Ceiling(s), Eat-in Kitchen, Granite Counters, Kitchen Island, Recessed Lighting
Sewer
Septic Tank
Elementary School
Central Valley Elementary School
Middle School
Monroe-Woodbury Middle School
High School
Monroe-Woodbury High School
School District
Monroe-Woodbury
Sales Price
$588,000
Real Estate Tax
$10,839/yr

Downloads

17 Pine Hill Road

Schedule a Tour

We would love to help you see this beautiful home! As a full-service brokerage, we can help you tour. Please submit an offer, and answer questions about the buying process.

Thank you

for your interest in 17 Pine Hill Road, Highland Mills, NY 10930

17 Pine Hill Road
Navigate
Woodbury

Explore Woodbury

read more
17 Pine Hill Road
explore in 3d

Mortgage Calculator

Estimate your monthly mortgage payment, including the principal and interest, property taxes, and HOA. Adjust the values to generate a more accurate rate.
$0,000 Your Payment 20 15 65
$0,000 Your Payment

I'm Interested In

17 Pine Hill Road

or
  • CallLuanne McGann

    License #2444083

    (845) 699-0475
  • Browse

    Our Listings

    • 22 Anton Court Active Under Contract

      $1,899,000

      22 Anton Court, Woodcliff Lake, NJ 07677

      • 5 Beds
      • 6 Baths
    • 658 Western Highway For Sale

      $1,299,000

      658 Western Highway, Blauvelt, NY 10913

      • 5 Beds
      • 4 Baths
      • 3,200 Sq.Ft.
    • 71 Gilchrest Road For Sale

      $1,200,000

      71 Gilchrest Road, Valley Cottage, NY 10989

      • 5 Beds
      • 4 Baths
      • 2,878 Sq.Ft.
    • 37 Mill Street For Sale

      $1,100,000

      37 Mill Street, Sloatsburg, NY 10974

      • 1,923 Sq.Ft.
    • 49 Helms Hill Road For Sale

      $1,075,000

      49 Helms Hill Road, Washingtonville, NY 10992

      • 4 Beds
      • 3 Baths
      • 3,796 Sq.Ft.
    • 1718 Edison Avenue For Sale

      $1,049,000

      1718 Edison Avenue, Bronx, NY 10461

      • 6 Beds
      • 3 Baths
      • 3,885 Sq.Ft.
    • 97 Moffat Road For Sale

      $965,000

      97 Moffat Road, Washingtonville, NY 10992

      • 4 Beds
      • 3 Baths
      • 3,508 Sq.Ft.
    • 597 Saddle River Road For Sale

      $899,000

      597 Saddle River Road, Chestnut Ridge, NY 10952

      • 6 Beds
      • 3 Baths
      • 2,745 Sq.Ft.
    • 863 Home Street Pending

      $829,999

      863 Home Street, Bronx, NY 10459

      • 5 Beds
      • 3 Baths
      • 1,992 Sq.Ft.
    • 5 Catawba Drive For Sale

      $815,000

      5 Catawba Drive, West Nyack, NY 10994

      • 4 Beds
      • 3 Baths
      • 2,559 Sq.Ft.
    • 3 Durant Road For Sale

      $799,000

      3 Durant Road, New City, NY 10956

      • 4 Beds
      • 3 Baths
      • 2,328 Sq.Ft.
    • 7 Park Place Pending

      $730,000

      7 Park Place, Chester, NY 10918

      • 4 Beds
      • 4 Baths
      • 2,780 Sq.Ft.
    • 34 Booth Road Pending

      $699,000

      34 Booth Road, Chester, NY 10918

      • 4 Beds
      • 3 Baths
      • 2,506 Sq.Ft.
    • 10 Hidden Drive For Sale

      $670,000

      10 Hidden Drive, Monroe, NY 10950

      • 4 Beds
      • 3 Baths
      • 3,636 Sq.Ft.
    • 105 Alexander Court Pending

      $650,000

      105 Alexander Court, Nanuet, NY 10954

      • 3 Beds
      • 4 Baths
      • 2,520 Sq.Ft.
    • 35 Sengstacken Drive For Sale

      $650,000

      35 Sengstacken Drive, Stony Point, NY 10980

      • 3 Beds
      • 2 Baths
      • 1,807 Sq.Ft.
    • 17 Pine Hill Road For Sale

      $588,000

      17 Pine Hill Road, Highland Mills, NY 10930

      • 2 Beds
      • 1 Bath
      • 1,224 Sq.Ft.
    • 355 Fosler Road For Sale

      $580,000

      355 Fosler Road, Wallkill, NY 12589

      • 4 Beds
      • 2 Baths
      • 1,664 Sq.Ft.
    • 5 Eagle Head Road For Sale

      $575,000

      5 Eagle Head Road, Cornwall On Hudson, NY 12520

      • 5 Beds
      • 4 Baths
      • 3,829 Sq.Ft.
    • 41 Ellis Place For Sale

      $550,000

      41 Ellis Place, Ossining, NY 10562

      • 6 Beds
      • 3 Baths
      • 2,276 Sq.Ft.
    • 22 High Street Pending

      $540,000

      22 High Street, Garnerville, NY 10923

      • 3 Beds
      • 2 Baths
      • 1,586 Sq.Ft.
    • 27 Monaco Drive Pending

      $539,000

      27 Monaco Drive, Hopewell Junction, NY 12533

      • 4 Beds
      • 2 Baths
      • 1,850 Sq.Ft.
    • 15 Badi Drive For Sale

      $499,000

      15 Badi Drive, Nyack, NY 10960

    • 89 Benson Street For Sale

      $499,000

      89 Benson Street, West Haverstraw, NY 10993

      • 3 Beds
      • 1 Bath
      • 1,080 Sq.Ft.
    • 25 Freund Drive Pending

      $475,000

      25 Freund Drive, Nanuet, NY 10954

      • 3 Beds
      • 1 Bath
      • 1,134 Sq.Ft.
    • 22 Creamery Road For Sale

      $425,000

      22 Creamery Road, Johnson, NY 10919

      • 5,524 Sq.Ft.
    • 36 Clausland Mountain Road For Sale

      $400,000

      36 Clausland Mountain Road, Blauvelt, NY 10913

    • 241 Country Club Lane Pending

      $399,999

      241 Country Club Lane, Pomona, NY 10970

      • 2 Beds
      • 2 Baths
      • 1,215 Sq.Ft.
    • 38 Chester Lane Pending

      $365,000

      38 Chester Lane, Nanuet, NY 10954

      • 1 Bed
      • 1 Bath
      • 949 Sq.Ft.
    • 4 Fairview Drive For Sale

      $340,000

      4 Fairview Drive, Tomkins Cove, NY 10986

      • 2 Beds
      • 1 Bath
      • 671 Sq.Ft.
    • 117 W Mombasha Road For Sale

      $339,000

      117 W Mombasha Road, Monroe, NY 10950

      • 3 Beds
      • 2 Baths
      • 1,033 Sq.Ft.
    • 2323 Whispering Hills Pending

      $327,000

      2323 Whispering Hills, Chester, NY 10918

      • 2 Beds
      • 2 Baths
      • 1,316 Sq.Ft.
    • 9G Blue Hill Commons Drive For Sale

      $299,999

      9G Blue Hill Commons Drive, Orangeburg, NY 10962

      • 1 Bed
      • 1 Bath
      • 539 Sq.Ft.
    • 59 Country Club Drive For Sale

      $285,000

      59 Country Club Drive, Call Listing Agent, NY 10921

      • 2 Beds
      • 1 Bath
      • 1,020 Sq.Ft.
    • 14 Normandy Village Unit: 5 Pending

      $265,000

      14 Normandy Village Unit: 5, Nanuet, NY 10954

      • 1 Bed
      • 1 Bath
      • 726 Sq.Ft.
    • 125 N Washington Avenue Unit: 1 Pending

      $235,000

      125 N Washington Avenue Unit: 2, Hartsdale, NY 10530

      • 2 Beds
      • 2 Baths
      • 1,100 Sq.Ft.
    • 105 North Mountainview MH Pending

      $229,000

      105 North Mountainview MH, Stony Point, NY 10950

      • 3 Beds
      • 2 Baths
      • 1,392 Sq.Ft.
    • 32 Grants Road For Sale

      $225,000

      32 Grants Road, Liberty, NY 12754

      • 2 Beds
      • 2 Baths
      • 1,040 Sq.Ft.
    • 3 North Mountainview MHP For Sale

      $187,900

      3 North Mountainview MHP, Stony Point, NY 10980

      • 2 Beds
      • 2 Baths
      • 896 Sq.Ft.
    • 214 West Mountainview MHP For Sale

      $185,000

      214 West Mountainview MHP, Stony Point, NY 10980

      • 2 Beds
      • 2 Baths
      • 1,204 Sq.Ft.
    • 509 5th Avenue For Sale

      $164,900

      509 5th Avenue, Middletown, NY 10941

      • 2 Beds
      • 2 Baths
      • 924 Sq.Ft.
    • 136 Quaker Rd Trailer Park Trailer Coming Soon

      $157,000

      136 Quaker Rd Trailer Park, Pomona, NY 10970

      • 4 Beds
      • 1 Bath
      • 720 Sq.Ft.
    • 250 N Main Street Unit: F5 Pending

      $150,000

      250 N Main Street Unit: F5, Spring Valley, NY 10977

      • 3 Beds
      • 3 Baths
      • 1,500 Sq.Ft.
    • 529 5th Ave For Sale

      $150,000

      529 5th Ave, Middletown, NY 10941

      • 3 Beds
      • 2 Baths
      • 1,152 Sq.Ft.
    • 17 Lot 17 Desmond Crossing For Sale

      $70,000

      17 Lot 17 Desmond Crossing, Bethel, NY 12720

    • 133 Kinderkamack For Sale

      $50,000

      133 Kinderkamack, Park Ridge, NJ 07677

    • 406 4th Avenue For Sale

      $39,000

      406 4th Avenue, Middletown, NY 10941

      • 2 Beds
      • 1 Bath
      • 910 Sq.Ft.
    • 316 Route 304 For Lease

      $7,600/mo

      316 Route 304, Bardonia, NY 10954

      • 2,232 Sq.Ft.
    • 34 Renfrew Road For Lease

      $7,000/mo

      34 Renfrew Road, New City, NY 10956

      • 5 Beds
      • 7 Baths
      • 4,713 Sq.Ft.
    • 101 Gatto Lane For Lease

      $3,200/mo

      101 Gatto Lane, Pearl River, NY 10965

      • 2 Beds
      • 1 Bath
      • 1,260 Sq.Ft.
    View All

    Follow Us On Instagram